全国
手机版
二维码
购货车
(
0
)
预算
服务商
资讯
别墅案例
视频
施工圈
农村自建别墅服务商
135-4792-2192
网站首页
自建别墅
别墅整包
别墅案例
建房技术
招标信息
合作加盟
关于我们
首页
>
自建别墅
>
二层别墅
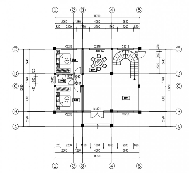
二层欧式别墅
点击图片查看原图
占地面积:
120平米
建筑面积:
建筑层数:
主体结构:
户型布局:
5室2厅
主体参考价:
28万
上门服务费:
参考价提示:
参考价为主体基建价格不含地基门窗外装,因地区材料及工价差异,主体造价会有一定差异
详细说明
其它产品
二层新中式小别墅
二层新中式别墅图纸
二层欧式别墅
新款中式别墅农村自建
简单乡村两层自建房带
三层欧式乡村别墅自建
三层网红乡村自建房全
豪华大气房子乡村盖三
0
条
相关评论
网站首页
|
欧艺VIP服务
|
关于我们
|
联系方式
|
加盟合作
|
版权隐私
|
网站地图
|
排名推广
|
广告服务
|
积分换礼
|
网站留言
|
RSS订阅
|
违规举报
|
蜀ICP备20021685号
(c)2020-2022 OYBS.CN SYSTEM All Rights Reserved